99
65
33
東城國際小區團裝正在進行中……

參加團裝活動享受哪些優惠政策
圖片或者文字排版出來即可
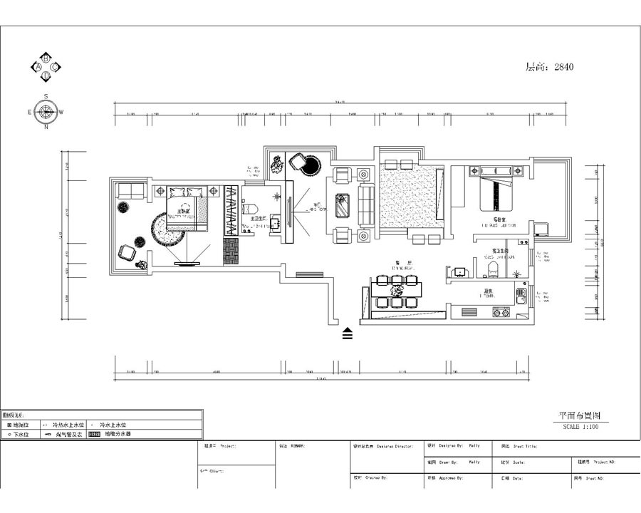
裝修設計的效果圖最好再加上戶型圖







| 團裝小區 |

參加團裝活動享受哪些優惠政策
圖片或者文字排版出來即可
裝修設計的效果圖最好再加上戶型圖






